Arizona Custom Home Builders
Since 1986, the team at Calvis Wyant has been designing and building custom luxury homes in Arizona, bringing to life the vision and dreams of every client, no matter what their goals, project size or design style…
Presenting 1654A, the last remaining showcase estate homesite in the prestigious Upper Canyon of Silverleaf — a rare and extraordinary opportunity to build your dream residence in one of Scottsdale’s most coveted communities.
This expansive parcel is the result of a unique combination of two premier lots (1654 and 1655), creating nearly four acres of pristine desert land with a generous 2.34-acre building envelope. Elevated to maximize its position, the site offers panoramic 360° views — from the majestic McDowell Mountains to the sparkling city lights of Scottsdale and Phoenix.
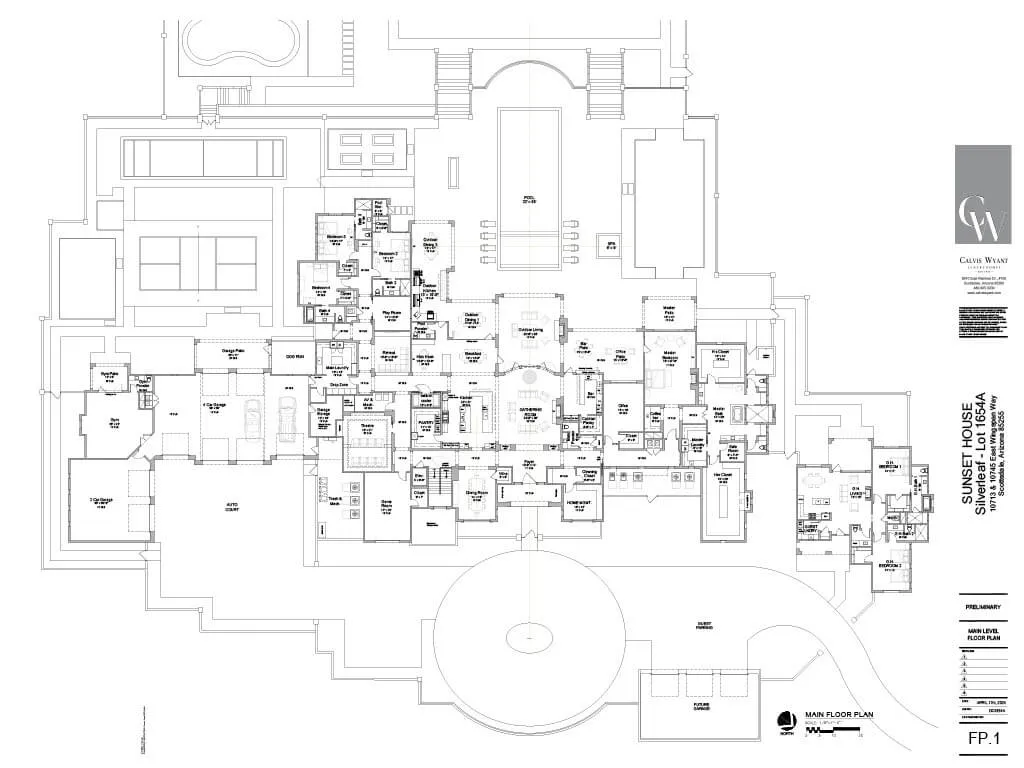
A permit-ready architectural plan is available for a one-of-a-kind 17,000 sq ft estate designed by Calvis Wyant, featuring every amenity for luxury living and entertaining: a grand main residence, guest house, oversized nine-car garage, basement, abundant storage, expansive patios and recreation spaces, ramadas, a resort-style pool, and an immense backyard. A full aerial video and design rendering can be viewed on the Calvis Wyant website.
Designed for ease and elegance, the single level living experience on this homesite is unmatched. The gently sloping terrain allows for zero interior or exterior steps from the driveway through to the terrace — offering seamless flow across the entire main level. The flat, generous driveway ensures ample guest parking while maintaining privacy and function.
Ideally located just five minutes from the guard gate and a short stroll to the Silverleaf Club’s Stonehouse, Homesite 1654A offers both exclusivity and convenience. With its commanding views, usable land, and immediate build potential, this is truly an irreplaceable legacy property — and the last of its kind in Silverleaf.
Buyer’s Agents please call for details!
